(+351) 962887268
Rua Coronel Melo Antunes n.º 43 | Loja 296 | 2870-497 Montijo
imo@ideiasxiques.com

Terreno C/projeto aprovado e Licença a pagamento – Alto dos Moinhos – Montijo

Details

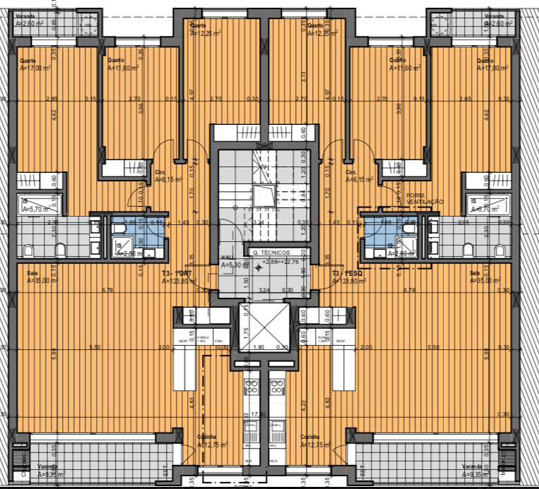
Lote de terreno com projeto aprovado e licença de pagamento junto da Câmara do Municipal do Montijo. Lote este com projeto aprovado para construção de edifício de 5 andares composto por 10 fogos, ou seja, dois apartamentos por piso, sendo os rés do chão de tipologia T2, os primeiros, segundos e terceiros andares de tipologia T3 com parqueamento na cave e quartos andares Duplex T3+1 com parqueamento na cave.

Área total do terreno:270m2 – Área de Implantação 270m2

Situado numa zona central que conta com várias construções recentes, bem como todo o tipo de comércio, como o Lidl e Continente a poucos minutos, assim como diversas pastelarias e serviços nas imediações.

Junto dos acessos às principais vias, estando a 4 minutos da Via Circular Externa, a 12 minutos da A33, e a 12 minutos da Ponte Vasco da Gama pela A12.

  • ID: 6312
  • Published: 15/02/2024
  • Last Update: 27/11/2024
  • Views: 1056
error: Content is protected !!